House Plan for: Amritsar, Nagpur, Faridabad, Kolkata.


Firefly 4
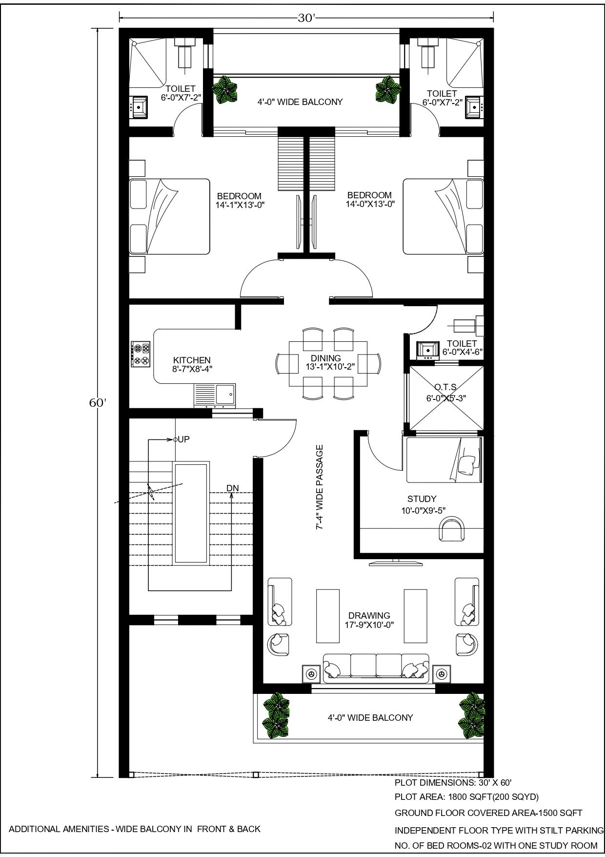
Prototype 5 | 2-Bedroom + Study Home | Independent Floor Plan | 30'x60' | 1800 Sqft ( 200 Gaj ) with Stilt Parking
Explore HomePlanr's custom 2-bedroom plus study home plan, featuring stilt parking on a 30'x60' plot. This 1800 sqft (200 Sq Yard) layout provides a generous 1500 sqft ground floor, meticulously designed for individual floor living with an added touch of academic elegance.
Attributes
- Plot Area1800 sq. ft
- Width30'
- Length60'
- Building TypeIndependent Floor type
- StyleModern
Amenities
- Bedroom2
- Living Room1
- Kitchen1
- Dining1
- Toilet2
- Parking1
Additional Amenities
- Wide Balcony Front1
- Wide Balcony Back1
Add-on Services
- Functional Floor Planstarts at00,000
- 2D Elevationstarts at00,000
- 3D Modellingstarts at00,000
- Estimationstarts at00,000
- Structure & Working Drawingstarts at00,000
- Electrical & Plumbingstarts at00,000
- Supervision Services
Our Packages
Starter Package
₹00,000What’s Included?
- Plan + Customization
- Cost Estimation
- Elevation Design
Most Popular
Professional Package
₹00,000What’s Included?
- Plan + Customization
- Cost Estimation
- Elevation Design
- 3D Design
Complete Package
₹00,000What’s Included?
- Plan + Customization
- Cost Estimation
- Elevation Design
- 3D Design
- Structural & Working Design
- Plumbing & Electrical
Latest Stories